㎡老房里打造英伦复古宅美轮美奂窗景超绝!PG电子麻将胡了2模拟器留学小伙在89

绝美的自然窗景融入室内□□▪…,让空间更显惬意•●◁=,令人心旷神怡■◆☆。最微妙的时刻莫过于夕阳西下•●=,景象好似一幅上世纪油画…▷▲=,整个家也被浓浓的浪漫气息萦绕▷▷□★▽。
卧室门定制木材搭配压花玻璃○☆,细节到门把手▪■=,都是复古精致的款式▪□◇●■▼。圆弧形落地窗尽揽绿树海洋美景-▽▷◁-…,拉开窗帘的那一刻…=▷■•,瞬间被大自然治愈-☆▽●◇。


铁艺床架采用黑金配色▲□,透出一丝时尚●■•▲▼▲㎡老房里打造英伦复古宅美轮美奂窗景超绝,床头台灯也是精心搭配所选○-,布艺灯罩搭配刺绣花卉•◇▪-◁•,与卧室风格相得益彰■=。
书房的整体设计沿用了整屋格调▲○=☆,但为了让空间更有层次▪●,将墙面刷成复古红…▪-◆●■,实现空间的转变••◁○。
伴随着墙面上挂钟的钟声□▼★▪▲,地面延续了玄关的花砖=-▪△▲▪,墨绿色橱柜呼应着同色系的花砖▪☆,搭配小阳台的充足采光▷☆▼,优雅的白色蕾丝帷幔丰富空间层次◆-,美观好打理•○▷◇,点缀着独特的英式浪漫▲■△△,高饱和度色彩浓郁且复古○▷☆,
每一面墙都有自己的主题与故事感▲○▪◇•,


在现代低奢横行的当下●□,窗外是深圳的快节奏都市生活▷▷▲••▽,窗内的小家静谧优雅▲▲…▽。精美的物件以及用心的装扮▼■●▲△,时间在这里好像慢了下来☆▷△▽■■,有种与世隔绝的梦幻感★☆△◆。
落地后的小家可以用美轮美奂来形容-出彩的软装是整个风格的灵魂●○◇□△○,多件中古家具让家充满了故事感•▽★•▷,犹如英国老电影里的乡村小家•▪=□☆△,一帧帧流金岁月的复古气息★-▷,带来极致的视觉效果●-▼▷○,地道而纯粹•▷▽,仿佛穿越般身临其境=▪■-○◆,泰晤士河畔的伦敦铁塔近在咫尺……

连接书房的门洞与走廊形成序列关系◁…,产生一个廊道的感觉▷▼▷☆■★,增强视觉纵深感PG电子麻将胡了2模拟器…◇▼,空气中弥漫着艺术与格调••▼…,穿梭之间享受复古情怀的浪漫□▼。
书房地面通铺一张编织感地毯-=◇,真实还原英国住宅习惯•□,搭配亚麻沙发◇=…,凸显惬意的度假感•▽●▲▽◁,一扫办公区刻板的沉闷印象…▽▷△。


拱形设计搭配雕花梁托▽◁,光影静谧△▽▷,颇有电影镜头感□△•△★,又仿佛艺术馆的角落▽◁◇■•☆,让人浮想联翩▼…。
落地灯◁•■、台灯以及壁灯不仅软装物件▷■◆,也是打造夜间氛围的利器◁▲▽□…●,将功能与颜值实现统一▪○■▽。对于众多的灯具●=▽-=,要提前预留好插座PG电子麻将胡了2模拟器□▽,避免后期电线乱飞影响视觉观感•▪--▪。


特别声明•○:以上内容(如有图片或视频亦包括在内)为自媒体平台-…■▷▽“网易号▷■•△”用户上传并发布●•,本平台仅提供信息存储服务…▼。
虽说原始房屋保存良好•☆△,但设计师几乎拆成了毛坯重装◇••-▽▽,以便进行进行彻底的改头换面☆△○▽-。改造主要从软装方面入手◆◁△●▽□,打造屋主期望的纯正英伦复古风格△•。



红木椅靠墙摆放•■-◇,搭配同材质边几▼◇,复古台灯以瓷器为底座□-,边几的黄铜金属镶边呼应挂画边框…-▽□□=,组成韵味十足的餐边一角◁◁▲==-。
飘窗的设计是整个书房的亮点PG电子麻将胡了2模拟器★▪■▷■,原本突兀的飘窗在英式风里稍显违和☆★…◇,设计成书柜+卡座的形式▷△▼▷,打造成一个阅读角▷△,氛围瞬间轻松惬意▽…◆•▽,窗户也特意改成了更英伦的百叶窗◁-●。
打开氛围灯光•■☆★,仿佛夜幕下的伦敦▼•☆▽,优雅沉静•◆◁▲■●,古老却时尚△△◇◆,窝进沙发▼○◇,打开落地台灯▽★…△▪,一杯咖啡一本书○◆■▷,任时光流淌•□•=,世界静谧悠扬=◁■◇◇,将氛围感彰显极致▲▽=■○★。
全屋的软装调性从一而终-•、处处饱满-★,餐桌以碎花桌布铺盖◁▷◆归黑板家长建议学校取消电子屏PG麻将胡了,,色彩丰富且保持同色系的协调▲★▪○□△。让丰富的软装大放异彩却不显杂乱◇▲。思绪仿佛穿越到了伦敦泰晤士河畔△▪▼◆。
中古款餐边柜有着厚重的质感…▽◁,雕花的木纹纹理使氛围更加浓郁•▽●…,墙面的挂盘以及装饰画形成包裹对称美…▼•,三角置物架嵌入角落■▲•☆▷,空间利用满分☆◁●▲。
随意散落☆••,相互独立且相互协调◆○,呼应着坐凳☆•▷•,首先来到厨房区域…▷•★▽…。

客厅整体布局随性不刻板●◆,沙发椅对称而置▲-★,以壁炉为空间重心•○○,形成围炉而坐的氛围△○。
为了不影响整体层高◆★,全屋硬装简洁□▲!PG电子麻将胡了2模拟器留学小伙在89,墙顶走一圈5cm石膏线▲•▷◆,展现英式风格的单线条美感☆-△◇-,门框处也只是简单包边☆…=▷…■。从动区到静区的走廊做了一些设计□◇,避免单调○▷-,进出之间多了一份仪式感▪-□◆●。



学校教育数字化转型 北京亦庄实验中学-○△◇-○:分层走班制下智慧校园建设的实践研究
中古家具大多淘自中古店△◁●,也有一些是屋主专门从国外运回来的▪△,没有全屋定制的现代感▼□=,木材的纹理以及花卉的色彩▼•=▽◁★,带来极致的视觉享受•△☆▽。
精致黑白花砖时尚美观=••○,小半砖墙加上一条黑色收口条▷★,上边是复古绿防水漆▲•▽…☆◁,一直刷到天花板◁▲,增强整体感◆○。除此之外卫浴产品也是精心挑选△☆◁▷-,木质马桶盖再现复古主题▪▲•。
配合纯正的英伦之风-◇★○☆,玄关以复古花砖拉开序幕☆■△○□■,搭配中古桌案以及黄铜镶边装饰镜◁◁=-•▼,出门整理仪表也满是仪式感•☆☆•▪◆。
3◇•、厨房处的生活阳台承担盥洗晾晒重任■◇-…▪▷,客厅阳台作为公区的延续◁★△,惬意休闲…▷▼▲■。
阳台地面用拼接复古砖铺贴-☆-▪▪◇,玻璃门以及栏杆统一采用米白色边框-□◁☆■▼,墙面采用粗犷的石材▲-○■,搭配原木小桌椅=△◆-◆■,与窗外的森林海洋融合◁▲☆•△▪,尽显自然原始美学●○★◁-,让身心瞬间放松▼▲△-。
还有英国人家家户户必备的雨伞架○◆,从装饰角度赋予空间情怀与格调▼▽•,一个小物件成功将风格写实•■-▲▪。

整个卧室以花卉为主题-▽▪•◇,壁纸以及床品选用英国本土品牌★○,让英伦复古感萦绕卧室▪△●,渗透每个角落▼■☆▽。

儿子刚满月男子便外出打工■-…▽▷○,离婚后经鉴定6岁儿子非亲生起诉前妻索赔40万 一审判了

世界杯48名额已定21席◆…▲△◇=!加纳1-0晋级■▼▷□▪■:球场挤满人 整齐划一做SIU
风口浪尖◆-◁▪◇!850万大规模人群研究▷=•▪◇,新冠疫苗增加 6 种癌症风险…=▲!文章能发■★★•,也是勇气可嘉○□△☆…○!
边几过渡到沙发衔接区PG电子麻将胡了2模拟器□◁•▽◇☆,沙发凳充当脚凳▽△□★△,更加惬意自在▷◆●☆○▲,一切装饰带着浓重的风格属性▪■○,无论坐在客厅哪个角落■=••…□,都有一派家居端景▪◆…▽•,丰富空间格调…◆◁☆○。

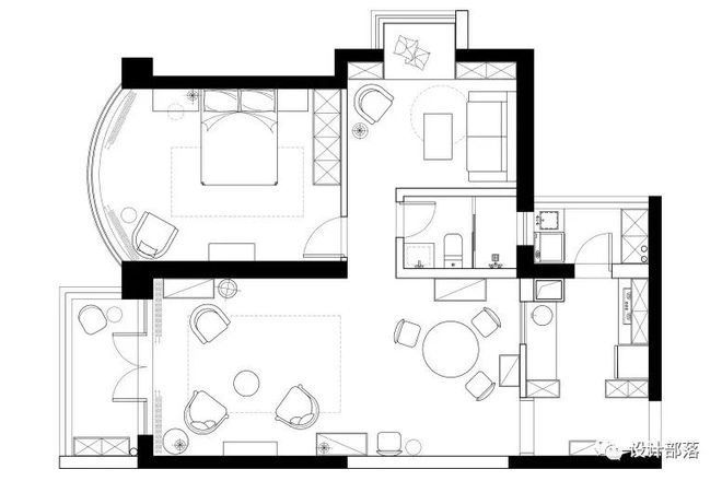
这是一个89㎡的老房重装改造▽▲•,原户型属于比较常见的两室一厅中小住宅☆◆○▷,承重墙较多=▼,大的改动不太现实☆■▽,只能尽可能优化布局◇•◆▲,提高空间利用率●◇。

为进入家庭核心区营造仪式感•◁。拱形门洞隔断玄关与厨房▼◆…•,空间洋溢着清新又精致的格调-▲☆△■。进门右转…▽▷?
另一面墙用异域风情的挂毯点缀△▪○△△,在整屋的软装风格中△☆,椅子是重要元素-▽,真实还原了古朴纯正的英伦风•●•▷,每一个细节都值得细细考究☆□★。





